Johnson County Community College
Fine Arts + Design Studios
A studio creating new synergies across disciplines that were previously dispersed across campus
Information
- Location Overland Park, Kansas
- Size 41,650 SF
- Completion 2019
- Services Architecture
- Project Type Community Colleges, Visual Arts
- Certification LEED v4 Silver
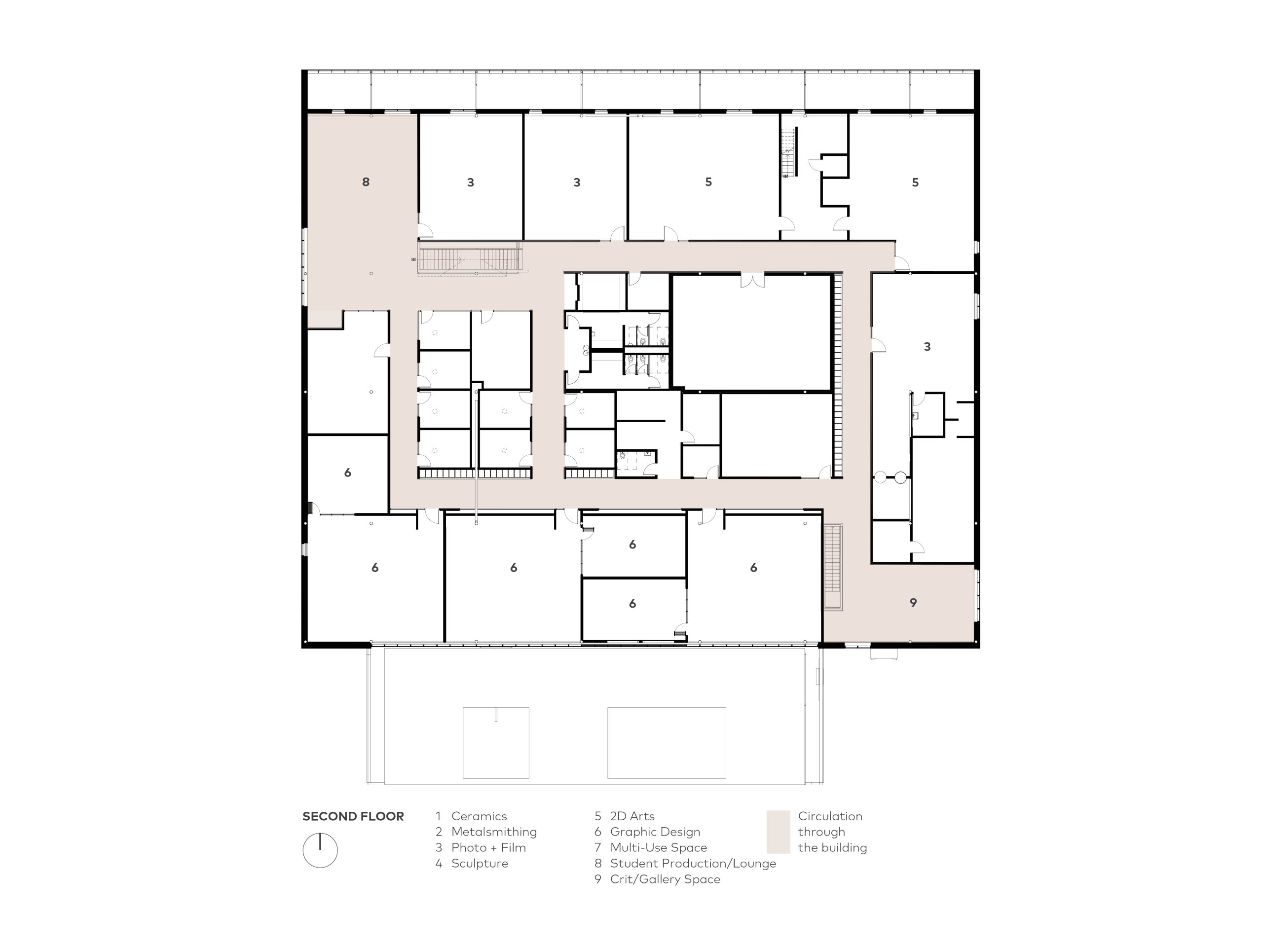
The Fine Arts + Design Studios (FADS) building brings together the disciplines of graphic design, sculpture, ceramics, metals, painting, drawing, photography, and filmmaking into a single, carefully crafted facility. The building includes classrooms and studio space, material storage, multi-use common spaces, as well as display and collaboration spaces throughout building corridors. The building provides flexible and vibrant maker spaces and supports various scales of work in light-filled teaching and learning environments. The design leverages every inch of the building for display and critique. In addition to providing flexible and vibrant interior studios, the building is thoughtfully sited to provide intimately scaled exterior spaces for the creation and display of art.
Impact + Innovation
The Fine Arts + Design Studios and its spaces exemplify the notion of learning by doing, providing a framework for new synergies and enhanced collaboration across artistic disciplines that were previously dispersed across campus. This design integrates and strengthens student connections while anchoring a new arts neighborhood on Johnson County Community College campus, adjacent to the successful Wylie Hospitality and Culinary Academy Building, and the Nerman Museum of Contemporary Art. Designed with flexibility in mind, FADS enables interdisciplinary learning, encourages artistic expression, and provides a “complementary contrast” with existing buildings, respecting the past while pivoting to the future and positioning JCCC for the 21st century and beyond.
People
Team
- James Pfeiffer
- Dan Johnson
- John Collier
- Matthew Kella
- Jeremy Knoll
- Katie Nichols
- Adam Wiechman
- Anastasia Huggins
- Ishita Banerjee
- Carly Pumphrey
- Amanda Santoro
- Kylie Schwaller
- Kyle Goebel
- Logan Medrano
Client
Johnson County Community College
Collaborators
The Clark Enersen Partners Inc.
JE Dunn Construction
SK Design
Media
News
Awards
AIA Oklahoma
Merit Award – Education Architecture
2025
AIA Central Oklahoma
Merit Award – Architecture
2024
AIA Kansas City
Merit Award
2019
AIA Kansas
Merit Award, Architecture
2019
AIA Central States Region
Honor Award, Architecture
2019






